16 min read
Are you planning a bathroom upgrade or building a new space? One important detail you can’t afford to overlook is the correct toilet install height.
It might seem simple, but choosing the right height affects your comfort, accessibility, and even safety every day. Wondering what the official codes say? Knowing these rules will help you avoid costly mistakes and ensure your bathroom meets all standards.
Keep reading to discover everything you need to know about toilet install height codes and how they impact your home.
Regulatory Standards For Toilet Height
Toilet install height is important for comfort and safety. Building codes help set the right heights.
This guide covers key rules for toilet height from different authorities.
International Building Codes
The International Building Code (IBC) gives general rules for toilet height. It aims for safety and ease of use.
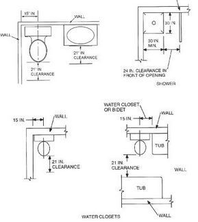
IBC usually requires toilets to be installed 15 inches to 19 inches from the floor to the top of the seat.
- Standard height: 15-19 inches
- Ensures comfort for most adults
- Supports plumbing and accessibility rules
Americans With Disabilities Act (ada) Requirements
The ADA sets specific toilet heights for people with disabilities. It helps make bathrooms accessible to all users.
Toilets must be 17 to 19 inches high from the floor to the seat top to meet ADA rules.
- Height range: 17-19 inches
- Allows easy transfer from wheelchairs
- Improves bathroom safety and usability
Local And State Variations
States and cities may have rules that differ from the IBC or ADA. These rules suit local needs.
Some places may require higher or lower toilet heights based on user population or building types.
- Check local building codes before installation
- Rules vary for residential and commercial buildings
- Some areas adopt stricter accessibility standards

Credit: www.jabrasanitary.com
Measuring Toilet Install Height
Toilet install height is important for comfort and accessibility. Measuring it correctly helps avoid problems later.
This guide explains how to measure toilet install height and what codes to follow.
Standard Seat Height Dimensions
Standard toilet seat height is usually 15 inches from the floor. This height fits most adults and children.
Building codes often set this as the minimum height for toilet installation.
- 15 inches is the typical standard seat height
- Works well for general use in homes
- Meets most local plumbing codes
Comfort Height Toilets
Comfort height toilets are taller than standard ones. They usually measure 17 to 19 inches from the floor.
Taller toilets help people with mobility issues and make sitting and standing easier.
- Height ranges from 17 to 19 inches
- Better for seniors and taller adults
- Often called “chair height” toilets
Methods For Accurate Installation
Use a tape measure to check the distance from the floor to the toilet seat. Measure both before and after installation.
Make sure the toilet flange is at the correct height. Adjust if needed to meet code requirements.
- Measure floor to seat height with a tape measure
- Check toilet flange height for proper fit
- Use a level to ensure the toilet is even
- Follow local plumbing codes for height rules
Accessibility Considerations
Toilet install height is important for making bathrooms usable by all people. Accessibility rules help design bathrooms that work for everyone.
These rules focus on ease of use, safety, and comfort. They support people with disabilities, elderly users, and others who need special help.
Requirements For Wheelchair Users
Wheelchair users need toilets at a height that allows easy transfers. The seat must be high enough for smooth movement from wheelchair to toilet.
The Americans with Disabilities Act (ADA) sets clear height rules. The toilet seat should be 17 to 19 inches above the floor for wheelchair users.
- Toilet seat height: 17-19 inches from floor
- Clear space around toilet for wheelchair access
- Grab bars installed near the toilet
Height Adjustments For Elderly And Disabled
Elderly and disabled people often need higher toilets. Higher seats reduce strain on knees and hips when sitting or standing.
Toilet height from 17 to 19 inches helps elderly users. Some may prefer even taller seats with added support aids.
- Comfort height toilets range 17-19 inches
- Use raised toilet seats if needed
- Install grab bars for extra support
Public Vs Residential Installation Guidelines
Public toilets follow strict codes to serve many users, including disabled people. These rules ensure safety and easy access.
Residential toilets have more flexible guidelines. Homeowners can choose heights that best fit their family needs.
| Installation Type | Typical Toilet Height | Accessibility Requirements |
|---|---|---|
| Public | 17-19 inches | Must meet ADA guidelines with grab bars and clear space |
| Residential | 14-16 inches (standard) or 17-19 inches (comfort) | Flexible; depends on user needs and preferences |

Credit: www.heatandplumb.com
Common Installation Mistakes
Installing a toilet at the wrong height can cause many problems. Many installers make simple mistakes that affect comfort and safety.
Following the right codes and measuring correctly helps avoid these errors. Let’s look at common mistakes during toilet install height setup.
Ignoring Code Specifications
Building codes give exact rules for toilet height. Ignoring these rules can cause the toilet to be too high or low.
These codes exist to make toilets easy to use and safe for everyone. Not following them can lead to legal problems and discomfort.
- Codes ensure accessibility for people with disabilities
- They help maintain uniformity in bathroom design
- Ignoring codes may fail inspections
Improper Measurement Techniques
Wrong measurements cause the toilet to be installed at the wrong height. This mistake is common when tools or methods are not correct.
Measuring from the floor to the rim of the toilet bowl is critical. Using inaccurate tools or rushing the job leads to errors.
- Use a level and tape measure for accuracy
- Measure multiple times to confirm the height
- Account for floor level and flange height
Impact On User Comfort And Safety
Incorrect toilet height can cause discomfort and health issues. It can strain the legs and back during use.
Safety risks increase with poor installation. A toilet too low or too high may cause slips or falls, especially for older adults.
- Proper height reduces joint strain
- Correct height helps people stand up easily
- Safe installation prevents accidents in bathrooms
Ensuring Compliance
Toilet install height codes help keep bathrooms safe and usable. Following these codes avoids problems and fines.
Compliance means meeting the rules set by building authorities. It protects users and ensures comfort.
Role Of Building Inspectors
Building inspectors check if the toilet height meets local codes. They ensure safety and accessibility rules are followed.
Inspectors visit the site during or after installation. They look for correct measurements and proper mounting.
- Verify toilet height matches code requirements
- Check for proper installation and support
- Ensure accessibility standards like ADA are met
- Report any issues for correction before approval
Documentation And Permits
Proper paperwork shows you follow the law. Permits must be obtained before starting toilet installation.
Documentation includes plans, measurements, and approval forms. Keep these records for inspections and future reference.
- Apply for plumbing permits from local authorities
- Submit toilet height plans and installation details
- Keep inspection reports and approval certificates
- Use documents to prove compliance if questioned
Tips For Contractors And Installers
Contractors should measure carefully and follow codes exactly. Using a level and tape measure helps accuracy.
Installers must mount toilets securely at the right height. Double-check local rules before starting work.
- Review local toilet height codes before installation
- Measure from floor to top of toilet seat carefully
- Use proper tools to ensure level and secure fit
- Communicate with inspectors and submit required documents

Credit: www.jabrasanitary.com
Emerging Trends In Toilet Height Design
Toilet height design is changing to meet new user needs. Comfort and accessibility guide these changes.
New designs focus on making toilets easier to use for all ages and abilities.
Adjustable Height Toilets
Adjustable height toilets let users change seat height easily. This helps people with different needs.
These toilets use simple controls to raise or lower the seat for comfort and safety.
- Supports people with mobility issues
- Good for shared bathrooms
- Improves comfort for taller or shorter users
Smart And Ergonomic Fixtures
Smart toilets use technology to improve hygiene and comfort. They have features like heated seats and automatic lids.
Ergonomic designs focus on natural body positions. This reduces strain and makes sitting easier.
- Soft-closing seats prevent noise
- Contoured seats fit body shape
- Touchless flush for cleanliness
Sustainability And Accessibility
Eco-friendly toilets save water and energy. Low-flow designs reduce waste without losing function.
Accessible toilets follow rules for users with disabilities. Proper height helps wheelchair users and seniors.
- Water-saving dual flush systems
- Height between 17 to 19 inches for accessibility
- Grab bars and space for mobility aids
Frequently Asked Questions
What Is The Standard Toilet Install Height Code?
The standard toilet install height code is typically 15 inches from the floor to the seat. This height complies with most building codes and ensures comfort for average users.
Are There Different Codes For Ada Toilet Height?
Yes, ADA toilet height codes require 17 to 19 inches from floor to seat. This range aids accessibility for individuals with disabilities, ensuring compliance with the Americans with Disabilities Act.
How Do Local Codes Affect Toilet Install Height?
Local building codes may vary but generally align with national standards. Always check local regulations before installation to ensure compliance and avoid costly adjustments.
Why Is Toilet Install Height Important In Building Codes?
Toilet install height affects user comfort, accessibility, and safety. Proper height ensures compliance with legal standards and meets the needs of all users.
Conclusion
Installing a toilet at the right height is crucial. It ensures comfort and safety. Always follow the recommended codes and guidelines. These help avoid future issues. Measure accurately before installation. Consider the needs of all users. Different heights suit different people.
A well-installed toilet enhances bathroom usability. It also adds to your home’s value. Keep these tips in mind. You’ll achieve a successful installation. Enjoy your comfortable and functional bathroom space.